Просеиватель муки ПМ-900М центробежный предназначен для аэрации муки, отделения посторонних включений и ферропримесей. Просеивающий узел расположен внизу. Откидывающийся приемный бункер для оперативного доступа к просеивающему узлу и его очистке. Высота емкости для просеянной муки до 920 мм. Подходят 330-ти литровые дежи от А2ХТ3-Б и А2-ХТМ. Оборудован устройством для подъема мешков.

Просеватель муки ПМ-900М Общий вид
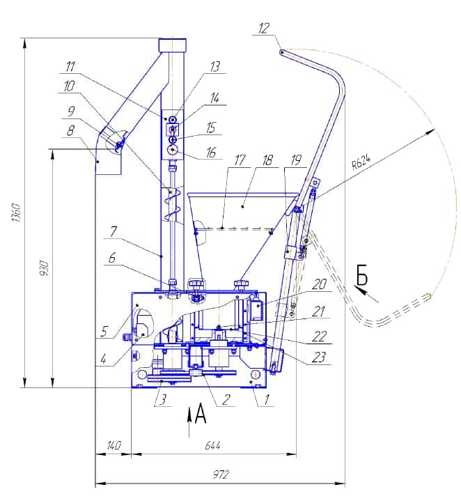
Принцип работы машины заключается в том, что мука, поступающая в бункер поз.18, попадает через дозатор поз.21 на сито поз.23 и под действием центробежной силы проходит сквозь него в зону вращения шнека поз.10. Затем она перемещается вверх по трубе поз.7, проходит через магнитный ловитель поз.9,
очищаясь от магнитных металлических частиц, и выходит через выходной рукав поз.8 в подготовленную
технологическую тару для приёмки муки.
5.3 Для обеспечения возможности очистки и замены сита, приёмный бункер закреплён к станине шарнирно и может переводиться в опрокинутое положение. Опрокидывание бункера производится его поворотом после ослабления затяжки бункера ручками, которые навёрнуты на откидные болты поз.6, и выведения
откидных болтов с ручками из пазов бункера. При опрокидывании бункера включение машины в работу
блокируется концевым выключателем поз.20.
Натяжение ремня поз.2 привода сита осуществляется натяжным винтом поз.26, при помощи
натяжного устройства поз.27 с роликом. Натяжение ремней поз.3 привода шнека осуществляется натяжным
болтом поз.25, при ослабленных болтах крепления электродвигателя, с последующей их затяжкой.
Для удобства загрузки машины мукой из мешков рама подъёмника поз.12 выполнена поворотной.
Для поворота рамы необходимо вывести из зацепления со стойкой собачку поз.28 и переместить корпус
поз.19 вдоль стойки.
Решётка поз.17, установленная в бункере поз.18, служит для защиты людей от доступа в зону вращения
сита и исключает возможность попадания мешка в дозатор.
Предназначены для просеивания муки, отделения посторонних включений, металлопримесей, аэрации муки
| Производительность максимальная/техническая, кг/ч | 3500/2800 |
|---|---|
| Номинальная мощность, кВт | 1,8 |
| Габаритные размеры, мм | 972х608х1360 |
| Масса, кг | 117 |
240000.00₽
